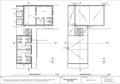
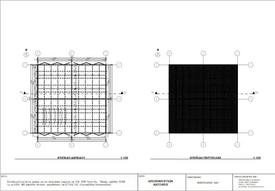
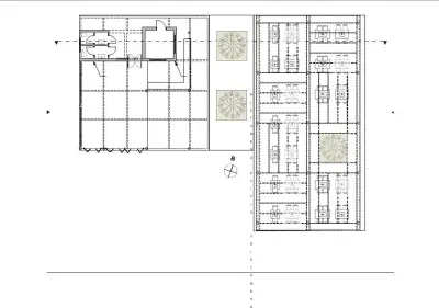
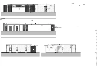
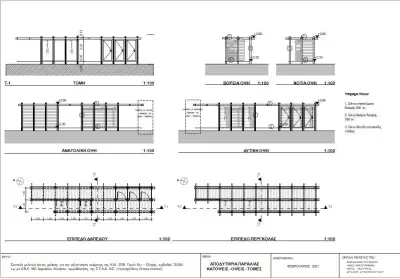
Αυτή είναι η μελέτη του ΤΕΕ για την αξιοποίηση της παραλίας του Ναυτικού Ομίλου - Δείτε το βίντεο

Πολιτικη Τρίτη, 27η Ιουλίου 2021
2750408e9fc7cca7f45ba4dc134c6f76.jpg

Δείτε παρακάτω την παρουσίαση της μελέτης του ΤΕΕ για την αξιοποίηση της παραλίας του Ναυτικού Ομίλου Κω!

VIDEO
ΡΟΗ ΕΙΔΗΣΕΩΝ
inshot_20251117_170622513.jpg
Η Κως πενθεί! Έφυγε από τη ζωή ο Αλκιβιάδης Χατζηνικολάου του Μιχαήλ

Ανείπωτος ο πόνος μας, μα και βαθιά η περηφάνια για τον ΑΝΘΡΩΠΟ Αλκιβιάδη, για τον δικό μας Άνθρωπο.

155d9589-744f-47ae-9e60-c2c4903d5325.jpg
Στάθης Μαστροκούκος, δάσκαλος της Τελένδου: Τα νησιά μας, τα σχολεία μας και τα μάτια μας!

Έκκληση του εκπαιδευτικού προς την πολιτεία να βρεθεί παιδί για να φοιτήσει στην Α’ τάξη του Δ.Σ. ώστε να μην έχει την τύχη του σχολείου των Αρκιών και κινδυνεύσει με λουκέτο.Δύο μαθητές, ο Σάββας και ο Κυριάκος, φοιτούν στην Ε’ τάξη

ΑΓΓΕΛΙΕΣ & ADVERTORIALS
15 ΧΡΟΝΙΑ ΣΤΗΝ ΥΠΗΡΕΣΙΑ
ΤΗΣ ΕΝΗΜΕΡΩΣΗΣ
ΑΥΤΗ ΤΗ ΣΤΙΓΜΗ ΣΤΗΝ ΚΩ
22 °C
Δευτέρα, 17 Νοεμβρίου 5:34ΜΜ
ΕΦΗΜΕΡΕΥΟΝΤΑ
ΦΑΡΜΑΚΕΙΑ
Απαγορεύεται ρητά η αναπαραγωγή κειμένου ή φωτογραφιών χωρίς άδεια.
Made by Reach Web Agency