ΌΡΑΜΑ: Ιδού κύριοι το θεσμικό πλαίσιο από το 2006… όσο και να χυδαιολογείτε εμείς θα συνεχίσουμε να μιλάμε μόνο με στοιχεία και καθαρές πολιτικές θέσεις

Πολιτικη Πέμπτη, 1η Μαρτίου 2018
7dcad1a2036b73254a24319500a64efc.jpg

Ιδού κύριοι το θεσμικό πλαίσιο από το 2006… όσο και να χυδαιολογείτε εμείς θα συνεχίσουμε να μιλάμε μόνο με στοιχεία και καθαρές πολιτικές θέσεις

Διαβάζουμε στην ανακοίνωση του κου Κυρίτση το εξής καταπληκτικό: «Το 2013 με τη δημιουργία του θεσμικού πλαισίου, που ήταν απαραίτητη προϋπόθεση, υποβλήθηκε αίτηση αναγνώρισης από την προηγούμενη δημοτική αρχή και εκπονήθηκε μελέτη για τις ιαματικές ιδιότητες του νερού στα Θερμά».

Ας δούμε λοιπόν πότε δημιουργήθηκε το θεσμικό πλαίσιο. Δίνουμε λοιπόν στη δημοσιότητα:

  1. Τον Νόμο 3498 του 2006 «Ανάπτυξη Ιαματικού Τουρισμού και άλλες διατάξεις» (ΦΕΚ Α 230 24/10/2006)
  2. Την υπ’ αριθμ. 16655/22.12.2006 Απόφαση Υπουργού Τουριστικής Ανάπτυξης «Διαδικασία αναγνώρισης ιαματικών φυσικών πόρων» (ΦΕΚ Β 1932 29/12/2006)

Υπενθυμίζουμε σε αυτό το σημείο ότι ο κος Κυρίτσης ανέλαβε καθήκοντα την 1η Ιανουαρίου 2007.

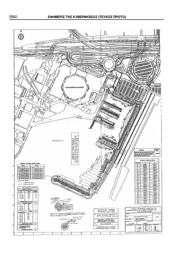
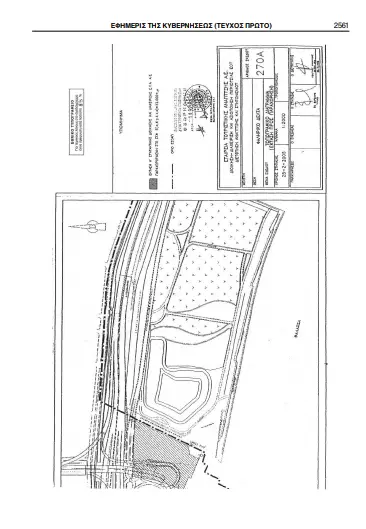
  1. Την υπ’ αριθμ. 321/30.07.2012 απόφαση του Δημοτικού Συμβουλίου Κω «ΕΓΚΡΙΣΗ & ΠΑΡΑΛΑΒΗ ΜΕΛΕΤΗΣ: «ΥΔΡΟΓΕΩΛΟΓΙΚΗ – ΓΕΩΛΟΓΙΚΗ ΜΕΛΕΤΗ ΓΙΑ ΤΗΝ ΑΝΑΓΝΩΡΙΣΗ ΦΥΣΙΚΟΥ ΠΟΡΟΥ ΩΣ ΙΑΜΑΤΙΚΟΥ ΣΤΗΝ ΠΕΡΙΟΧΗ ΑΓ. ΦΩΚΑ ΚΩ» ΣΤΗ ΘΕΣΗ ΕΜΠΡΟΣ ΘΕΡΜΗ ΔΗΜΟΥ ΚΩ, Η ΟΠΟΙΑ ΕΚΠΟΝΗΘΗΚΕ ΑΠΟ ΤΟ ΙΓΜΕ».

Σε αυτή την απόφαση θα ανακαλύψετε κ. Κυρίτση ότι σας πήρε τρία ολόκληρα, με ψηφισμένο το θεσμικό πλαίσιο, να αναθέσετε τη μελέτη στο ΙΓΜΕ γιατί προφανώς είχατε άλλα ενδιαφέροντα εκείνη την εποχή.

  1. Την υπ’ αριθμ. 14/08.02.2013 απόφαση του Δημοτικού Συμβουλίου Κω «ΥΠΟΒΟΛΗ ΦΑΚΕΛΟΥ ΠΡΟΣ ΤΗΝ ΑΡΜΟΔΙΑ ΔΙΕΥΘΥΝΣΗ ΤΟΥ ΕΟΤ ΓΙΑ ΑΝΑΓΝΩΡΙΣΗ ΩΣ ΙΑΜΑΤΙΚΟΥ ΤΟΥ ΦΥΣΙΚΟΥ ΠΟΡΟΥ ΤΗΣ ΠΗΓΗΣ «ΕΜΠΡΟΣ ΘΕΡΜΗ» ΤΟΥ ΔΗΜΟΥ ΚΩ ΚΑΙ ΓΙΑ ΤΗΝ ΚΑΤΑΧΩΡΗΣΗ ΤΟΥ ΣΤΟ ΜΗΤΡΩΟ ΤΩΝ ΙΑΜΑΤΙΚΩΝ ΦΥΣΙΚΩΝ ΠΟΡΩΝ ΤΟΥ ΕΛΛΗΝΙΚΟΥ ΟΡΓΑΝΙΣΜΟΥ ΤΟΥΡΙΣΜΟΥ».

Τέλος, χωρίς να θέλουμε να σας στεναχωρήσουμε κ. Κυρίτση δίνουμε στη δημοσιότητα και το Δελτίο Τύπου του Υπουργείου Τουρισμού της 28ης Μαΐου 2013 που αναφέρεται στη αναγνώριση της Ιαματικής Πηγής Αγίου Φωκά Κω.

ΓΡΑΦΕΙΟ ΤΥΠΟΥ

ΟΡΑΜΑ ΚΙΝΗΜΑ ΠΟΛΙΤΩΝ ΝΗΣΟΥ ΚΩ

ΡΟΗ ΕΙΔΗΣΕΩΝ
ΑΓΓΕΛΙΕΣ & ADVERTORIALS
15 ΧΡΟΝΙΑ ΣΤΗΝ ΥΠΗΡΕΣΙΑ
ΤΗΣ ΕΝΗΜΕΡΩΣΗΣ
ΑΥΤΗ ΤΗ ΣΤΙΓΜΗ ΣΤΗΝ ΚΩ
12 °C
Σάββατο, 21 Φεβρουαρίου 9:32ΠΜ
ΕΦΗΜΕΡΕΥΟΝΤΑ
ΦΑΡΜΑΚΕΙΑ
Απαγορεύεται ρητά η αναπαραγωγή κειμένου ή φωτογραφιών χωρίς άδεια.
Made by Reach Web Agency