Γιώργος Σιδερής: Εγκαίνια του ανακαινισμένου Αρχαιολογικού Μουσείου Κω

Κοινωνια Τετάρτη, 28η Σεπτεμβρίου 2016
58ec157f01c36907375adc5c879f8122.jpg
ΤουΓιώργουΣιδερή

Την Κυριακή 18 Σεπτεμβρίου 2016 πραγματοποιήθηκαν τα εγκαίνια του ανακαινισμένου Αρχαιολογικού Μουσείου Κω, η αποκατάσταση του οποίου καθώς και η επανέκθεση του Μουσείου Κω χρηματοδοτήθηκαν από πόρους του ΕΣΠΑ 2007-2013.

Για την αποκατάσταση του Μουσείου ήδη από το έτος 2000, είχε εκπονηθεί από τον γράφοντα η αρχιτεκτονική μελέτη στο πλαίσιο της Προγραμματικής Σύμβασης Υπουργείου Πολιτισμού – Δήμου Κω – Ταμείου Αρχαιολογικών Πόρων, η οποία εγκρίθηκε στο σύνολο των προτάσεών της από το Κεντρικό Αρχαιολογικό Συμβούλιο του Υπουργείου Πολιτισμού ως προς την μουσειακή άποψη και με τροποποιήσεις από το δεύτερο γνωμοδοτικό όργανο ως προς τις κτιριακές προτάσεις, δηλαδή από το Κεντρικό Συμβούλιο Νεωτέρων Μνημείων.

Η αρχική μελέτη που εγκρίθηκε από το Κεντρικό Αρχαιολογικό Συμβούλιο παρουσιάσθηκε στο 2ο Διεθνές συνέδριο “Hazards & modernHeritageInternationalConference, Κος 2005” - “Κίνδυνοι από καταστροφές &Σύγχρονη Πολιτιστική Κληρονομιά” που έγινε στην Κω τον Οκτώβριο 2005, με τίτλο “Βελτιωτικές Λειτουργικές Επεμβάσεις στο Αρχαιολογικό Μουσείο Κω”, η οποία δημοσιεύθηκε στα Πρακτικά του παραπάνω Συνεδρίου.

Ως αρχικός μελετητής αλλά κύρια ως άνθρωπος που πάλεψα για να γίνει ένα σωστό έργο στον τόπο μας, θεωρώ υποχρέωση μου να καταθέσω την άποψη μου αλλά και την εμπειρία μου για την πορεία του έργου.

Το αρχαιολογικό Μουσείο της ΚΩ που βρίσκεται στην κεντρική πλατεία Ελευθερίας κατασκευάστηκε την περίοδο της Ιταλοκρατίας στα Δωδεκάνησα (1936) στην βάση των σχεδίων του ιταλού αρχιτέκτονα RodolfoPetracco.

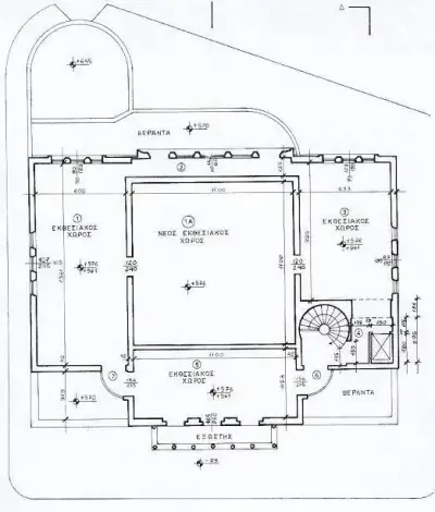
Στο ισόγειο, του διωρόφου κτιρίου, περιμετρικά του στεγασμένου αιθρίου διατάσσονται τρεις αίθουσες και ο προθάλαμος εισόδου που αποτελούν τους εκθεσιακούς χώρους των γλυπτών.

Το υπόγειο χρησιμοποιείτο ως αποθηκευτικός χώρος, ενώ ο 1ος όροφος προορίσθηκε για την έκθεση της συλλογής αγγείων και παρέμενε ανενεργός και μη επισκέψιμος από τότε που το μουσείο κτίστηκε.

Στόχος της μελέτης που συνέταξα ήταν να λειτουργήσουν όλοι οι χώροι του μουσείου με τη μέγιστη αξιοποίηση της χωρητικότητας του και παράλληλα να προβλεφθούν και οι κατάλληλες δυνατότητες πρόσβασης, διακίνησης και παραμονής των επισκεπτών, στους οποίους συμπεριλαμβάνονται και τα άτομα με ειδικές ανάγκες, καθώς και του εξοπλισμού του κτιρίου με σύγχρονες τεχνολογικές εγκαταστάσεις.

Σχετικά με την δυνατότητα της επέκτασης του κτιρίου, της δημιουργίας δηλαδή επιπλέον εκθεσιακών χώρων, σημειώνω ότι ήδη από την περίοδο κατασκευής του, το 1936, είχε προκύψει αυτή η αναγκαιότητα η οποία οδήγησε τους ίδιους τους ιταλούς να αναθεωρήσουν τις αρχικές τους επιλογές κλείνοντας το αίθριο, το οποίο χρησιμοποιήθηκε ως ένας επιπρόσθετος εκθεσιακός χώρος.

Με την μελέτη προτάθηκε λοιπόν στο κενό που υφίσταται στα όρια του εσωτερικού περιγράμματος του στεγασμένου αιθρίου να διαμορφωθεί μία νέα αίθουσα στην στάθμη του 1ου ορόφου, με επιφάνεια ίδια με αυτή του αιθρίου.

Αιτιάσεις περί αλλοίωσης του αιθρίου με την προταθείσα επέμβαση θεωρούμε ότι δεν ευσταθούν, διότι η έννοια του κεντρικού αίθριου ήδη εκ των πραγμάτων είχε αναιρεθεί από τους ίδιους τους ιταλούς που το σχεδίασαν και στη συνέχεια το στέγασαν, με αποτέλεσμα ότι απέμεινε από αυτό σήμερα δεν είναι παρά μία ανοικτή δεξαμενή στο εσωτερικό του κτιρίου που δεν φαίνεται από πουθενά.

Η κατασκευή με ξύλινα στοιχεία, ως φέρουσα υποδομή του δαπέδου και κάλυψη της οροφής της προταθείσας νέας αίθουσας, θα μπορούσε οποιαδήποτε στιγμή αν χρειαζόταν να αποσυναρμολογηθεί χωρίς επιπτώσεις στη μορφή και στον φέροντα οργανισμό του μνημείου.

Το θέμα του φωτισμού του στεγασμένου με υαλότουβλα και περιμετρικά υαλοστάσια κεντρικού αιθρίου με το ψηφιδωτό , θα λυνόταν με τεχνητό φωτισμό ενσωματωμένο σε ψευδοροφή πάνω από αυτό, στερεωμένη στις ξύλινες φέρουσες δοκούς του πατώματος της νέας αίθουσας.

Με τη λύση αυτή:

  1. Αυξανόταν ο εκθεσιακός χώρος με την δημιουργία μίας νέας αίθουσας διαστάσεων11.00m x11.00m,συνολικού καθαρού εμβαδού 121.00m2
    1. Υπήρχε η δυνατότητα αξονικής και κυκλικής κίνησης στις αίθουσες του ορόφου.
    2. Δεν αλλοιωνόταν εξωτερικά η μορφή του κτιρίου .
    3. Δεν θιγόταν η μορφολογία της αίθουσας με το ψηφιδωτό ενώ παράλληλα αντιμετωπιζόταν το πρόβλημα της στεγάνωσής της.

Για την επαναλειτουργία και επισκεψιμότητα των χώρων του ορόφου, με την πρόσβαση, διακίνηση και παραμονή των επισκεπτών και ειδικότερα των ατόμων με ειδικές ανάγκες η μελέτη προέβλεπε:

  1. Πρόσβαση στο μουσείο από την κύρια είσοδο και εγκατάσταση ανυψωτικών συστημάτων για τα άτομα με ειδικές ανάγκες .
  2. Απρόσκοπτη διακίνηση στους εκθεσιακούς χώρους όλων των ορόφων.
  3. Δημιουργία χώρων υγιεινής για το κοινό, συμπεριλαμβανομένων και των ατόμων με ειδικές ανάγκες.
  4. Σήμανση των χώρων και δημιουργία εκδοτηρίου και πωλητηρίου.
  5. Εγκατάσταση υδραυλικού ανελκυστήρα, κατάλληλου και για άτομα με ειδικές ανάγκες.
  6. Εργασίες συντήρησης και οι τεχνολογικές εγκαταστάσεις, όπως και αυτές της πυρανίχνευσης, πυρασφάλειας και συναγερμού.

Το Κεντρικό Συμβούλιο Νεωτέρων Μνημείων σε αντίθεση με το Κεντρικό Αρχαιολογικό Συμβούλιο του Υπουργείο Πολιτισμού επέφερε τροποποιήσεις στην υποβληθείσα αρχική μελέτη, και ουσιαστικά μόνο στην μη αποδοχή της κατασκευής της νέας αίθουσας με το σκεπτικό της “αλλοίωσης της τυπολογίας του κτιρίου με το κλείσιμο του αιθρίου”.

Ωστόσο παρά τις τελικές εγκρίσεις που είχαν προηγηθεί, έστω και χωρίς την έγκριση για την προταθείσα νέα αίθουσα, σε ένα δεύτερο χρόνο η μελέτη υποβλήθηκε εκ νέου από την αρμόδια αρχαιολογική υπηρεσία στο Κεντρικό Συμβούλιο Νεωτέρων Μνημείων, προτείνοντας την κατασκευή μίας κλίμακας η οποία από το υπόγειο και τον ισόγειο εκθεσιακό χώρο της βόρειας πλευράς του μουσείου, οδηγεί στην βεράντα του ορόφου που κλείσθηκε με ένα συνεχές μεταλλικό υαλοστάσιο.

Με αυτές τις εγκρίσεις και επεμβάσεις θεωρούμε ότι όχι μόνο αλλοιώθηκε κραυγαλέα η εξωτερική μορφή της βόρειας πλευράς του μουσείου αλλά παράλληλα το ίδιο το μουσείο στερήθηκε ενός υφιστάμενου εκθεσιακού χώρου γλυπτών καθώς και της βόρειας βεράντας του, χώροι που μετατράπηκαν σε κλιμακοστάσιο.

Θεωρούμε ακόμα ότι η εξαιρετική έκθεση των γλυπτών, των αγγείων και λοιπών ανεκτίμητης αξίας αρχαιολογικών ευρημάτων που σήμερα εκτίθενται στο μουσείο, στρυμωγμένα, θα μπορούσαν να αναδειχθούν πολύ καλύτερα και με άνεση στην προταθείσα κεντρική αίθουσα που απορρίφτηκε.

Η δημιουργία του “νέου κλιμακοστασίου” με την κατάργηση μίας υφιστάμενης αίθουσας εκθεσιακών χρήσεων και της ανοικτής βόρειας βεράντας του ορόφου, εμμέσως πλην σαφώς, έδωσε λαβή για ποικίλους αρνητικούς σχολιασμούς σχετικά με τις ατυχείς αρχιτεκτονικές επιλογές που υλοποιήθηκαν, για τις οποίες έγινε “μνεία” επίσης κατά την εκδήλωση των εγκαινίων του Μουσείου.

Κλείνοντας είναι αξιοσημείωτο ότι στα εγκαίνια αποδόθηκαν εύσημα σε όλο το προσωπικό κάθε βαθμίδας της αρχαιολογικής υπηρεσίας, χωρίς καμιά αναφορά στους αρχικούς συντελεστές που συνέταξαν και ωρίμασαν την μελέτη ήδη από το έτος 2000, η οποία στη συνέχεια τροποποιήθηκε και χρησιμοποιήθηκε από την αρχαιολογική υπηρεσία.

Ακόμα πιο αξιοπερίεργο είναι ότι δεν δόθηκε ο λόγος για ένα έστω χαιρετισμό στον πρώτο πολίτη του νησιού, τον Δήμαρχο

ΦΩΤΟΓΡΑΦΙΕΣ
ΡΟΗ ΕΙΔΗΣΕΩΝ
ΑΓΓΕΛΙΕΣ & ADVERTORIALS
15 ΧΡΟΝΙΑ ΣΤΗΝ ΥΠΗΡΕΣΙΑ
ΤΗΣ ΕΝΗΜΕΡΩΣΗΣ
ΑΥΤΗ ΤΗ ΣΤΙΓΜΗ ΣΤΗΝ ΚΩ
18 °C
Τρίτη, 28 Απριλίου 8:41ΠΜ
ΕΦΗΜΕΡΕΥΟΝΤΑ
ΦΑΡΜΑΚΕΙΑ
Απαγορεύεται ρητά η αναπαραγωγή κειμένου ή φωτογραφιών χωρίς άδεια.
Made by Reach Web Agency